НЕМЕЦКОЕ КАЧЕСТВО С РУССКОЙ ДУШОЙ
Вход
регистрация
Восстановление пароля
участки ИЖС с сетями 6-12 соток в 7 км от Челябинска
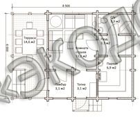
Полный набор необходимых помещений – парная, раздевалка, с\у, топочная, тамбур, комната отдыха с большим окном.
Баня из бруса 160х115
Площадь 1 этажа – 32.9 м2
Площадь террасы – 14.6 м2 Площадь застройки – 52.5 м2
Общая площадь бани – 47.8 м2