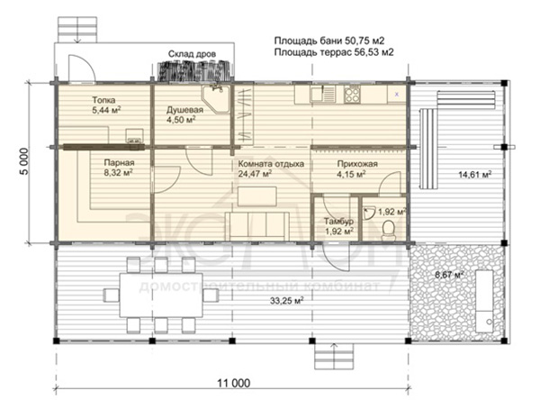
Баня из клееного бруса площадью 50,75 кв.м. не воспринимается всего лишь как место, предназначенное исключительно для приема гигиенических процедур. Скорее, это маленький домик для тех, кто чрезвычайно любит банную процедуру и хочет иметь возможность наслаждаться ею в любое удобное время. Большая и уютная комната отдыха, из которой можно попасть в полноценную кухню, прекрасно оборудованную душевую и в самое главное для любителей банных процедур — парилку.
Топка имеет отдельный вход, в просторную прихожую попадаешь через прекрасно сохраняющий тепло тамбур с защищенной декоративными решетками террасы, на которой без всякого труда оформляется обеденная зона, а на небольшой угловой террасе устанавливается мечта любого ценителя качественного дачного отдыха — печь барбекю.
Но целых три уютных террасы и все достоинства планировки бани — еще не все. Баня из клееного бруса настолько изящна и красива, что может стать настоящим украшением любого участка. А если организовать дополнительно оригинальное архитектурное и садовое освещение, то сад и дачный участок превратится в самую настоящую сказку...