Гостеприимные владельцы загородных участков строят из современного материала клееного бруса не только большой, красивый и полностью благоустроенный дом. Они рассчитывают и на то, что к ним время от времени будут приезжать близкие друзья и родственники. А у некоторых людей кто-нибудь гостит постоянно.
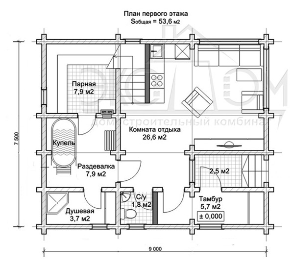
Именно поэтому гостеприимные семьи предпринимают строительство на своем участке отдельного гостевого домика общей площадью 109,7 кв.м., одновременно являющегося самой настоящей баней. Хорошо прогревшись в парной, можно выйти и насладиться водой контрастной температуры в небольшой и уютной купели, а потом перейти в благоустроенную душевую. Здесь же — большая комната отдыха с кухней и обеденной зоной, санузел. А на втором этаже — большой холл и три спальни.
И еще одно несомненное достоинство этой бани, являющейся по совместительству уютным благоустроенным гостевым домиком. Это строение выполнено из клееного бруса, имеет прекрасный дизайн и способно украсить любой участок. Просто своим присутствием.