Сказать, что постоянное проживание за городом в собственном коттедже, имеющем все необходимое инженерное благоустройство, привлекает все больше горожан, значит не сказать ничего. И это — не просто очередной модный тренд. Иметь возможность хотя бы проводить за городом выходные — насущная необходимость для любого жителя мегаполиса.
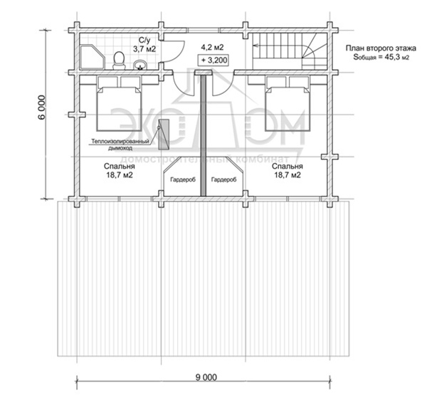
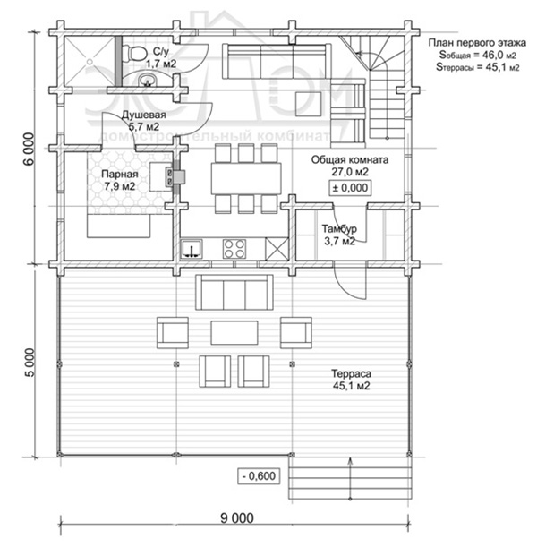
Баня — одно из самых важных для любителей и знатоков настоящего расслабляющего наслаждения строений в загородном домовладении. А потому ограничиваться возведением простой деревенской баньки по-белому уже мало кто хочет. Другое дело — баня в двух уровнях, с большой общей комнатой, в которой выделены кухонная и обеденная зоны и зона отдыха, с двумя спальнями, гардеробами и санузлом на втором этаже, ну и, конечно, с прекрасно оборудованными душевой, парной и террасой! Такая баня из клееного бруса площадью 91,3 кв.м. — уже не просто баня. Это настоящий гостевой домик, который можно построить и на собственном дачном участке. Для себя.