Клееная балка перекрытий, цементно-пещаная черепица Braas, большие окна с фальш-переплетом, красивый фасад с резными элементами.
Комфортный дом для большой семьи из бруса 160х180
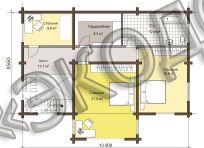
Площадь 1 этажа – 103.9 м2
Площадь 2 этажа – 93.2 м2
Площадь крылец – 16.5 м2
Площадь застройки – 134.9 м2
Общая площадь дома – 213.6 м2