Главная Дома из клееного брусаКомплектация и стоимость проекта

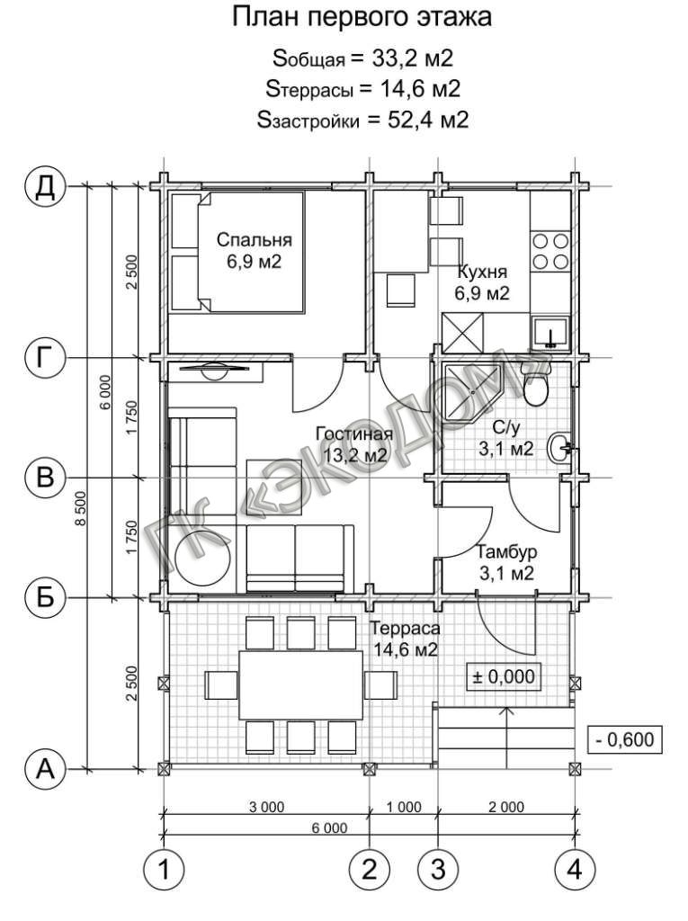
Дом площадью 33 м2 (код Д-0033-О-1)

участки ИЖС с сетями 6-12 соток в 7 км от Челябинска