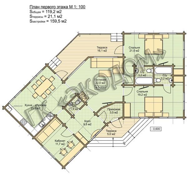
Ушли в прошлое времена, когда загородный дом представлял собой нечто скучно-серое и безрадостно не отличающееся от множества других домов в поселке. Горожане, решившие, что жизнь в пригороде или где-нибудь подальше, хотя бы на время отпуска, позволит в короткие сроки восстановить утраченные за долгий рабочий год силы и вновь обрести душевное спокойствие, стремятся все же к оригинальности и красоте особняка и уюту усадьбы в целом. Да и в самом деле, ничто не может сравниться с прекрасным утром, наполненным птичьими трелями, со сверкающими алмазами росинок на светящихся изнутри изумрудами свежих листьев в любовно возделываемом саду и с уютно потрескивающим камином в доме из клееного бруса площадью 119 кв.м. — с двумя террасами, нестандартной конфигурации и всеми необходимыми удобствами...
Но! Пожалуй, даже все прелести чистого и свежего ветра и невыразимой свободы, которую человек может ощутить только за городом, поближе к природе, вряд ли заставят жителя мегаполиса, привыкшего к комфорту городских удобств, отказаться от них. Да и не нужно. В стильном и теплом, уютном и располагающем к дружеской беседе и полному отдохновению от трудов праведных на благо родного коллектива, есть все необходимое для комфортной жизни. И даже больше. Две большие спальни, полностью благоустроенная просторная кухня, обустроенная по принципу «Мечта хозяйки», рабочий кабинет, роскошная гостиная — что еще нужно человеку для счастья?