Главная Дома из клееного брусаКомплектация и стоимость проекта

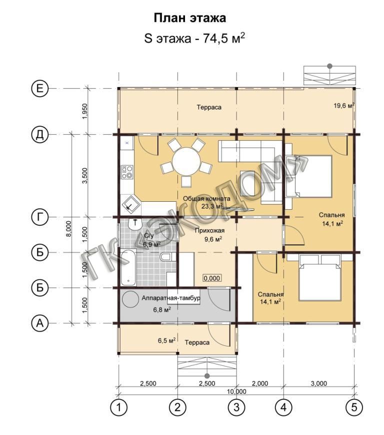
Дом площадью 74 м2 (код Д-0074-О-2)

участки ИЖС с сетями 6-12 соток в 7 км от Челябинска